現在、空室がございません。
徳舛ビルの貸事務所・賃貸オフィス情報
徳舛ビルの貸事務所・賃貸オフィス情報
徳舛ビル
- エレベーター
- 個別空調
- 駐車場
- 新耐震基準
徳舛ビルの空室フロアリスト
現在、空室がございません。
徳舛ビルの物件情報
徳舛ビル(中野区東中野)は東中野駅徒歩4分、落合駅徒歩6分、中井駅徒歩12分の賃貸オフィスです。
徳舛ビルのアクセス
徳舛ビルの募集終了区画
| 階数 | 面積 | 賃料+共益費 | 保証金 | 入居時期 | 更新料 | 償却費 | 礼金 | 平面図 | 詳細 |
|---|---|---|---|---|---|---|---|---|---|
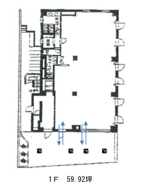
| 1 | 59.92坪 | − | − | 募集終了 | − | − | − | ||
| 2 | 59.31坪 | − | − | 募集終了 | − | − | − | ||
| 3 | 59.31坪 | − | − | 募集終了 | − | − | − | ||
| 4 | 50.23坪 | − | − | 募集終了 | − | − | − |


