現在、空室がございません。
名無し物件の貸事務所・賃貸オフィス情報
名無し物件の貸事務所・賃貸オフィス情報
名無し物件
- 新耐震基準
名無し物件の空室フロアリスト
現在、空室がございません。
名無し物件の物件情報
名無し物件(文京区音羽)は江戸川橋駅徒歩6分、護国寺駅徒歩7分、茗荷谷駅徒歩15分の賃貸オフィスです。
名無し物件のアクセス
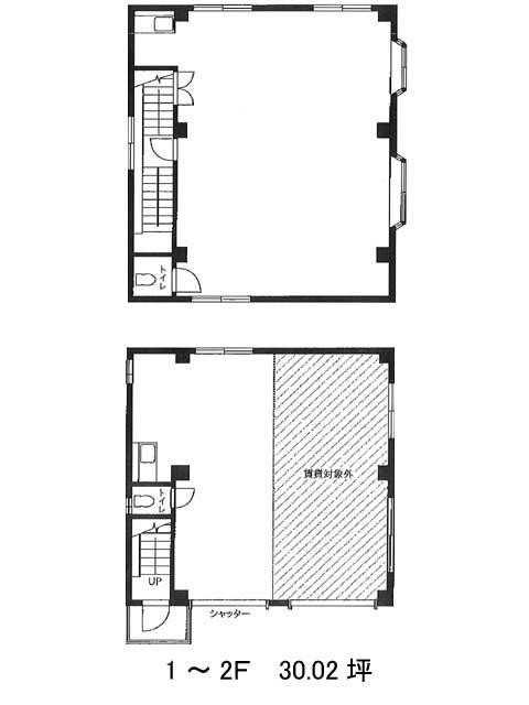
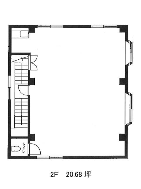
名無し物件の募集終了区画
| 階数 | 面積 | 賃料+共益費 | 保証金 | 入居時期 | 更新料 | 償却費 | 礼金 | 平面図 | 詳細 |
|---|---|---|---|---|---|---|---|---|---|
| 0 | 30.01坪 | − | − | 募集終了 | − | − | − | ||
| 2 | 20.68坪 | − | − | 募集終了 | − | − | − |


