クロス護国寺の貸事務所・賃貸オフィス情報
クロス護国寺の貸事務所・賃貸オフィス情報
クロス護国寺
- エレベーター
- 個別空調
- 新耐震基準
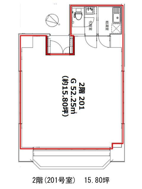
クロス護国寺の空室フロアリスト
| 階数 | 面積 | 賃料+共益費 | 保証金 | 入居時期 | 更新料 | 償却費 | 礼金 | 検討 | 平面図 | 詳細 |
|---|---|---|---|---|---|---|---|---|---|---|
| 2 | 15.80坪 |
応相談応相談
|
応相談
|
即 | なし | なし | なし |
クロス護国寺の物件情報
クロス護国寺(文京区音羽)は護国寺駅徒歩2分、江戸川橋駅徒歩10分、茗荷谷駅徒歩13分の賃貸オフィスです。
クロス護国寺のアクセス
クロス護国寺の募集終了区画
| 階数 | 面積 | 賃料+共益費 | 保証金 | 入居時期 | 更新料 | 償却費 | 礼金 | 平面図 | 詳細 |
|---|


