ラ・トゥール小石川の貸事務所・賃貸オフィス情報
ラ・トゥール小石川の貸事務所・賃貸オフィス情報
ラ・トゥール小石川
- エレベーター
- 駐車場
- 新耐震基準
ラ・トゥール小石川の空室フロアリスト
| 階数 | 面積 | 賃料+共益費 | 保証金 | 入居時期 | 更新料 | 償却費 | 礼金 | 検討 | 平面図 | 詳細 |
|---|---|---|---|---|---|---|---|---|---|---|
| 1 | 16.80坪 |
462,000円27,500円/坪
|
252万円
|
即 | 新1ケ月 | なし | 2ケ月 |
ラ・トゥール小石川の物件情報
ラ・トゥール小石川(文京区大塚)は茗荷谷駅徒歩3分、護国寺駅徒歩12分、新大塚駅徒歩13分の賃貸オフィスです。
ラ・トゥール小石川のアクセス
ラ・トゥール小石川の条件に近い物件
ラ・トゥール小石川の募集終了区画
| 階数 | 面積 | 賃料+共益費 | 保証金 | 入居時期 | 更新料 | 償却費 | 礼金 | 平面図 | 詳細 |
|---|---|---|---|---|---|---|---|---|---|
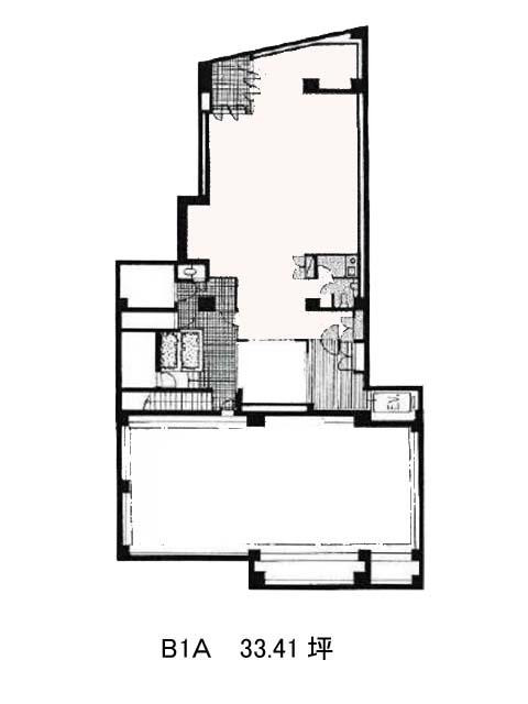
| 地下1 | 33.41坪 | − | − | 募集終了 | − | − | − | ||
| B1-B2 | 70.00坪 | − | − | 募集終了 | − | − | − | ||
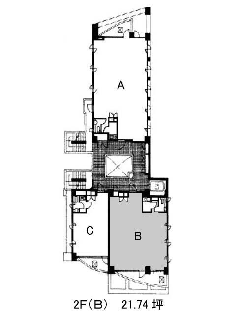
| 2 | 21.74坪 | − | − | 募集終了 | − | − | − | ||
| 3 | 27.54坪 | − | − | 募集終了 | − | − | − | ||
| 3 | 21.74坪 | − | − | 募集終了 | − | − | − |


