STビルの貸事務所・賃貸オフィス情報
STビルの貸事務所・賃貸オフィス情報
STビル
- 物件番号
- 786-00131
- 所在地
- 東京都文京区湯島2-14-4
- 竣工
- 1991年4月
- 規模
- 地上6階/地下1階
- エレベーター
- 個別空調
- 新耐震基準
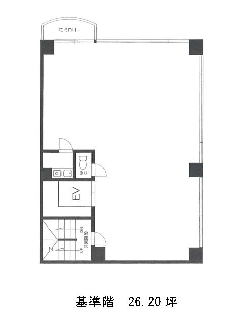
STビルの空室フロアリスト
| 階数 | 面積 | 賃料+共益費 | 保証金 | 入居時期 | 更新料 | 償却費 | 礼金 | 検討 | 平面図 | 詳細 |
|---|---|---|---|---|---|---|---|---|---|---|
| 2 | 26.20坪 |
374,660円14,300円/坪
|
188万円
|
2026年5月上旬 | 新1ケ月 | 2ケ月 | なし | |||
| 4 | 26.20坪 |
374,660円14,300円/坪
|
188万円
|
2026年5月上旬 | 新1ケ月 | 2ケ月 | なし |
STビルの物件情報
STビル(文京区湯島)は湯島駅徒歩7分、末広町駅徒歩8分、本郷三丁目駅徒歩9分の賃貸オフィスです。
STビルのアクセス
STビルの条件に近い物件
STビルの募集終了区画
| 階数 | 面積 | 賃料+共益費 | 保証金 | 入居時期 | 更新料 | 償却費 | 礼金 | 平面図 | 詳細 |
|---|---|---|---|---|---|---|---|---|---|
| 3 | 26.20坪 | − | − | 募集終了 | − | − | − |


