現在、空室がございません。
プリ・テックビルの貸事務所・賃貸オフィス情報
プリ・テックビルの貸事務所・賃貸オフィス情報
プリ・テックビル
- 物件番号
- 786-00243
- 所在地
- 東京都文京区湯島2-7-16
- 竣工
- 1993年10月
- 規模
- 地上7階/地下1階
- エレベーター
- 個別空調
- 新耐震基準
プリ・テックビルの空室フロアリスト
現在、空室がございません。
プリ・テックビルの物件情報
プリ・テックビル(文京区湯島)は末広町駅徒歩8分、湯島駅徒歩8分、御茶ノ水駅徒歩9分の賃貸オフィスです。
プリ・テックビルのアクセス
プリ・テックビルの募集終了区画
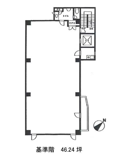
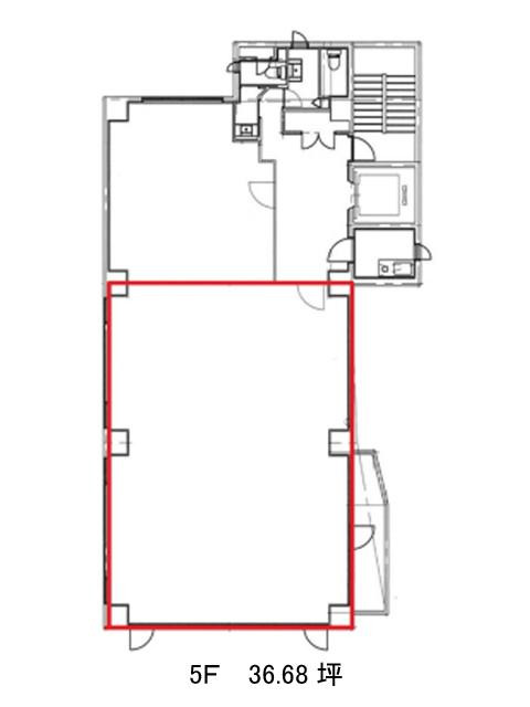
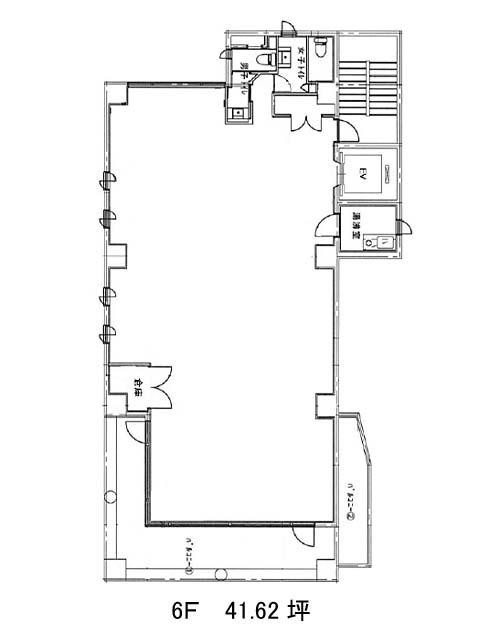
| 階数 | 面積 | 賃料+共益費 | 保証金 | 入居時期 | 更新料 | 償却費 | 礼金 | 平面図 | 詳細 |
|---|---|---|---|---|---|---|---|---|---|
| 3 | 46.24坪 | − | − | 募集終了 | − | − | − | ||
| 4 | 46.24坪 | − | − | 募集終了 | − | − | − | ||
| 5 | 36.68坪 | − | − | 募集終了 | − | − | − | ||
| 6 | 41.62坪 | − | − | 募集終了 | − | − | − |


