現在、空室がございません。
大成堂ビルの貸事務所・賃貸オフィス情報
大成堂ビルの貸事務所・賃貸オフィス情報
大成堂ビル
- エレベーター
- 個別空調
- 新耐震基準
大成堂ビルの空室フロアリスト
現在、空室がございません。
大成堂ビルの物件情報
大成堂ビル(文京区本郷)は水道橋駅徒歩4分、本郷三丁目駅徒歩8分、御茶ノ水駅徒歩9分の賃貸オフィスです。
大成堂ビルのアクセス
大成堂ビルの募集終了区画
| 階数 | 面積 | 賃料+共益費 | 保証金 | 入居時期 | 更新料 | 償却費 | 礼金 | 平面図 | 詳細 |
|---|---|---|---|---|---|---|---|---|---|
| 3 | 27.17坪 | − | − | 募集終了 | − | − | − | ||
| 4 | 27.17坪 | − | − | 募集終了 | − | − | − | ||
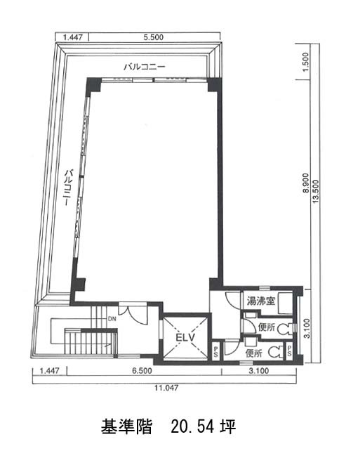
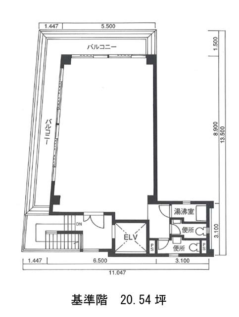
| 5 | 20.54坪 | − | − | 募集終了 | − | − | − | ||
| 6 | 20.54坪 | − | − | 募集終了 | − | − | − |


