ツインビュー御茶の水の貸事務所・賃貸オフィス情報
ツインビュー御茶の水の貸事務所・賃貸オフィス情報
ツインビュー御茶の水
- 物件番号
- 788-00186
- 所在地
- 東京都文京区本郷2-3-9
- 竣工
- 1994年3月
- 規模
- 地上9階/地下1階
- エレベーター
- 個別空調
- 駐車場
- 新耐震基準
ツインビュー御茶の水の空室フロアリスト
| 階数 | 面積 | 賃料+共益費 | 保証金 | 入居時期 | 更新料 | 償却費 | 礼金 | 検討 | 平面図 | 詳細 |
|---|---|---|---|---|---|---|---|---|---|---|
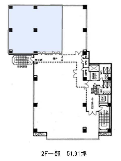
| 2 | 51.91坪 |
応相談応相談
|
応相談
|
2026年5月上旬 | なし | なし | なし |
ツインビュー御茶の水の物件情報
ツインビュー御茶の水(文京区本郷)は水道橋駅徒歩5分、本郷三丁目駅徒歩8分、御茶ノ水駅徒歩9分の賃貸オフィスです。
ツインビュー御茶の水のアクセス
ツインビュー御茶の水の条件に近い物件
ツインビュー御茶の水の募集終了区画
| 階数 | 面積 | 賃料+共益費 | 保証金 | 入居時期 | 更新料 | 償却費 | 礼金 | 平面図 | 詳細 |
|---|---|---|---|---|---|---|---|---|---|
| 1 | 27.83坪 | − | − | 募集終了 | − | − | − | ||
| 1 | 24.09坪 | − | − | 募集終了 | − | − | − | ||
| 2 | 27.68坪 | − | − | 募集終了 | − | − | − | ||
| 2 | 112.00坪 | − | − | 募集終了 | − | − | − | ||
| 2 | 28.00坪 | − | − | 募集終了 | − | − | − | ||
| 2 | 84.16坪 | − | − | 募集終了 | − | − | − | ||
| 3 | 79.59坪 | − | − | 募集終了 | − | − | − | ||
| 3 | 79.59坪 | − | − | 募集終了 | − | − | − |


