MSGビルの貸事務所・賃貸オフィス情報
MSGビルの貸事務所・賃貸オフィス情報
MSGビル
- エレベーター
- 個別空調
- 駐車場
- 新耐震基準
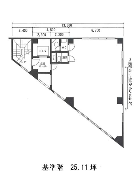
MSGビルの空室フロアリスト
| 階数 | 面積 | 賃料+共益費 | 保証金 | 入居時期 | 更新料 | 償却費 | 礼金 | 検討 | 平面図 | 詳細 |
|---|---|---|---|---|---|---|---|---|---|---|
| 4 | 25.11坪 |
297,000円11,829円/坪
|
50万円
|
2026年7月中旬 | 新1ケ月 | なし | 1ケ月 |
MSGビルの物件情報
MSGビル(文京区本郷)は春日駅徒歩2分、後楽園駅徒歩5分、本郷三丁目駅徒歩8分の賃貸オフィスです。
MSGビルのアクセス
MSGビルの条件に近い物件
MSGビルの募集終了区画
| 階数 | 面積 | 賃料+共益費 | 保証金 | 入居時期 | 更新料 | 償却費 | 礼金 | 平面図 | 詳細 |
|---|---|---|---|---|---|---|---|---|---|
| 1 | 25.11坪 | − | − | 募集終了 | − | − | − | ||
| 3 | 25.11坪 | − | − | 募集終了 | − | − | − |


