現在、空室がございません。
東京ビルの貸事務所・賃貸オフィス情報
東京ビルの貸事務所・賃貸オフィス情報
東京ビル
- 物件番号
- 788-00228
- 所在地
- 東京都文京区本郷3-32-7
- 竣工
- 1994年12月
- 規模
- 地上8階/地下1階
- エレベーター
- 個別空調
- 新耐震基準
東京ビルの空室フロアリスト
現在、空室がございません。
東京ビルの物件情報
東京ビル(文京区本郷)は本郷三丁目駅徒歩2分、水道橋駅徒歩9分、御茶ノ水駅徒歩10分の賃貸オフィスです。
東京ビルのアクセス
東京ビルの募集終了区画
| 階数 | 面積 | 賃料+共益費 | 保証金 | 入居時期 | 更新料 | 償却費 | 礼金 | 平面図 | 詳細 |
|---|---|---|---|---|---|---|---|---|---|
| 1 | 37.87坪 | − | − | 募集終了 | − | − | − | ||
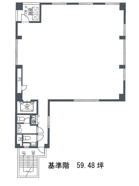
| 3 | 59.48坪 | − | − | 募集終了 | − | − | − | ||
| 4 | 59.48坪 | − | − | 募集終了 | − | − | − | ||
| 5 | 59.48坪 | − | − | 募集終了 | − | − | − | ||
| 6 | 59.48坪 | − | − | 募集終了 | − | − | − | ||
| 7 | 59.48坪 | − | − | 募集終了 | − | − | − | ||
| 8 | 59.48坪 | − | − | 募集終了 | − | − | − |


