0120-16-2331

【受付時間】平日 AM9:00〜PM7:00

メールでお問合せ
現在、空室がございません。

本郷ボックスツリービルの貸事務所・賃貸オフィス情報

本郷ボックスツリービルの貸事務所・賃貸オフィス情報

本郷ボックスツリービル

物件番号
788​-​00401
所在地
東京都文京区本郷2-22-12
最寄駅
春日駅 11分
後楽園駅 12分
竣工
1993年3月
規模
地上8階/地下1階
  • エレベーター
  • 個別空調
  • 新耐震基準

本郷ボックスツリービルの空室フロアリスト

現在、空室がございません。

本郷ボックスツリービルの物件情報

本郷ボックスツリービル(文京区本郷)は本郷三丁目駅徒歩4分、水道橋駅徒歩7分、御茶ノ水駅徒歩9分の賃貸オフィスです。

本郷ボックスツリービルのアクセス

本郷ボックスツリービルの募集終了区画

階数 面積 賃料+共益費 保証金 入居時期 更新料 償却費 礼金 平面図 詳細
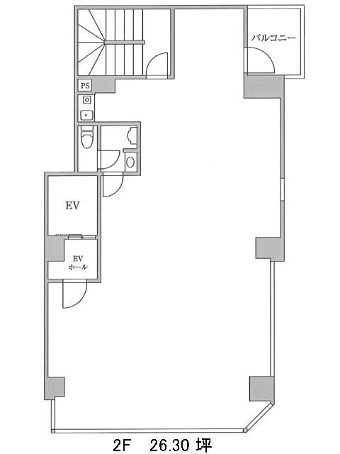
2 26.30坪 募集終了
3 26.16坪 募集終了
4 26.11坪 募集終了
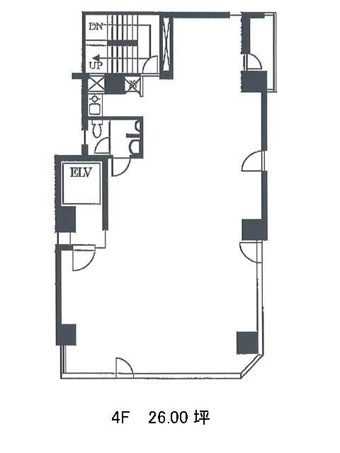
5 26.00坪 募集終了
6 26.16坪 募集終了

貸事務所・賃貸オフィスを最寄駅から探す

貸事務所・賃貸オフィスを最寄駅の沿線から探す

お問合せ このビルについて問い合わせる