0120-16-2331

【受付時間】平日 AM9:00〜PM7:00

メールでお問合せ

湯浅ビルの貸事務所・賃貸オフィス情報

湯浅ビルの貸事務所・賃貸オフィス情報

湯浅ビル

物件番号
788​-​00006
所在地
東京都文京区本郷2-13-10
最寄駅
末広町駅 13分
竣工
1994年5月
規模
地上9階
  • エレベーター
  • 個別空調
  • 新耐震基準

湯浅ビルの空室フロアリスト

階数 面積 賃料+共益費 保証金 入居時期 更新料 償却費 礼金 検討 平面図 詳細
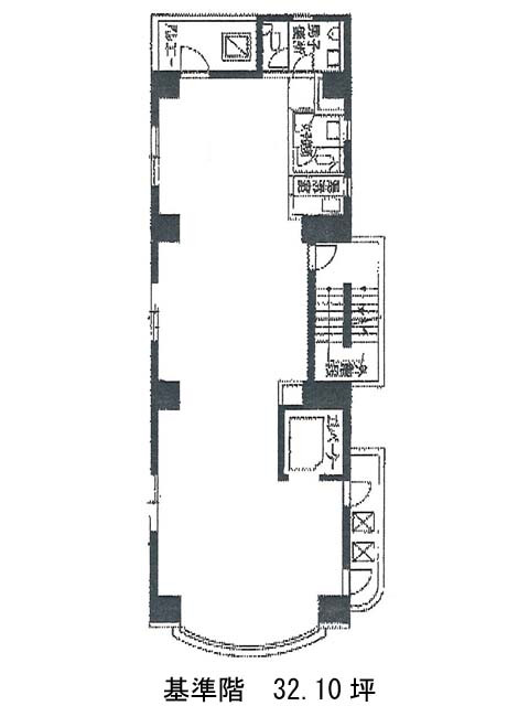
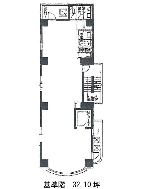
6 32.10坪
459,030円14,300円/坪
250万円
2026年8月上旬 新1ケ月 2ケ月 なし

湯浅ビルの物件情報

湯浅ビル(文京区本郷)は本郷三丁目駅徒歩6分、御茶ノ水駅徒歩7分、水道橋駅徒歩9分の賃貸オフィスです。

湯浅ビルのアクセス

湯浅ビルの条件に近い物件

本郷K&Kビル

東京都文京区本郷3-30-10

本郷K&Kビル

おおたビル

東京都文京区本郷2-29-8

おおたビル

お茶の水KSビル

東京都文京区本郷3-3-1

お茶の水KSビル

日平本郷ビル

東京都文京区本郷3-14-11

日平本郷ビル

サンブライト本郷

東京都文京区本郷2-21-1

サンブライト本郷

本郷ゼットエスビル

東京都文京区本郷3-30-9

本郷ゼットエスビル

ヴァリエ後楽園

東京都文京区本郷1-4-6

ヴァリエ後楽園
  • 面積 16.66坪
  • 空きフロア 1
  • 最寄り駅
    水道橋駅 徒歩1分

メゾンウィスタリア

東京都文京区本郷1-28-13

メゾンウィスタリア
  • 面積 17.04坪
  • 空きフロア 1
  • 最寄り駅
    春日駅 徒歩5分

本郷三宝ビル

東京都文京区本郷3-19-7

本郷三宝ビル

お茶の水スカイハイツ

東京都文京区本郷2-11-2

お茶の水スカイハイツ

貸事務所・賃貸オフィスを最寄駅から探す

貸事務所・賃貸オフィスを最寄駅の沿線から探す

湯浅ビルの募集終了区画

階数 面積 賃料+共益費 保証金 入居時期 更新料 償却費 礼金 平面図 詳細
1 27.10坪 募集終了
4 32.10坪 募集終了
5 32.10坪 募集終了
7 32.10坪 募集終了
お問合せ このビルについて問い合わせる