カブト上池袋ビルの貸事務所・賃貸オフィス情報
カブト上池袋ビルの貸事務所・賃貸オフィス情報
カブト上池袋ビル
- エレベーター
- 個別空調
- 新耐震基準
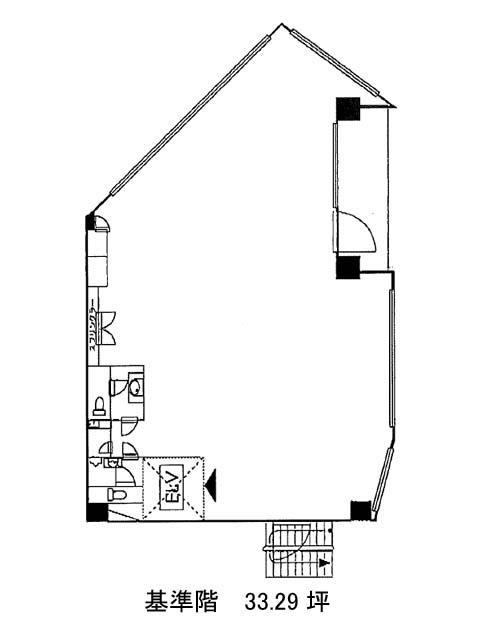
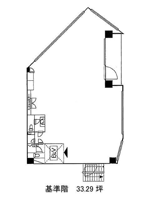
カブト上池袋ビルの空室フロアリスト
| 階数 | 面積 | 賃料+共益費 | 保証金 | 入居時期 | 更新料 | 償却費 | 礼金 | 検討 | 平面図 | 詳細 |
|---|---|---|---|---|---|---|---|---|---|---|
| 6 | 33.29坪 |
407,016円12,226円/坪
|
198万円
|
2026年10月中旬 | 新1ケ月 | 1ケ月 | 1ケ月 | |||
| 7 | 33.29坪 |
418,027円12,557円/坪
|
204万円
|
2026年8月上旬 | 新1ケ月 | 1ケ月 | 1ケ月 |
カブト上池袋ビルの物件情報
カブト上池袋ビル(豊島区上池袋)は北池袋駅徒歩8分、巣鴨新田駅徒歩9分、西巣鴨駅徒歩11分の賃貸オフィスです。
カブト上池袋ビルのアクセス
カブト上池袋ビルの条件に近い物件
カブト上池袋ビルの募集終了区画
| 階数 | 面積 | 賃料+共益費 | 保証金 | 入居時期 | 更新料 | 償却費 | 礼金 | 平面図 | 詳細 |
|---|---|---|---|---|---|---|---|---|---|
| 地下1 | 28.01坪 | − | − | 募集終了 | − | − | − | ||
| 2 | 46.45坪 | − | − | 募集終了 | − | − | − | ||
| 3 | 46.45坪 | − | − | 募集終了 | − | − | − | ||
| 4 | 46.45坪 | − | − | 募集終了 | − | − | − | ||
| 9 | 33.29坪 | − | − | 募集終了 | − | − | − | ||
| 10 | 33.29坪 | − | − | 募集終了 | − | − | − | ||
| 12 | 25.31坪 | − | − | 募集終了 | − | − | − |


