クレッセントさわの貸事務所・賃貸オフィス情報
クレッセントさわの貸事務所・賃貸オフィス情報
クレッセントさわ
- 物件番号
- 851-00063
- 所在地
- 東京都墨田区向島5-24-5
- 最寄駅
- 竣工
- 1989年9月
- 規模
- 地上5階
- エレベーター
- 駐車場
- 新耐震基準
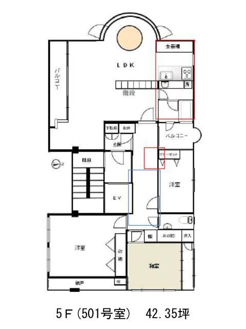
クレッセントさわの空室フロアリスト
| 階数 | 面積 | 賃料+共益費 | 保証金 | 入居時期 | 更新料 | 償却費 | 礼金 | 検討 | 平面図 | 詳細 |
|---|---|---|---|---|---|---|---|---|---|---|
| 5 | 42.35坪 |
応相談応相談
|
応相談
|
即 | 新1ケ月 | 1ケ月 | 1ケ月 |
クレッセントさわの物件情報
クレッセントさわのアクセス
クレッセントさわの募集終了区画
| 階数 | 面積 | 賃料+共益費 | 保証金 | 入居時期 | 更新料 | 償却費 | 礼金 | 平面図 | 詳細 |
|---|


