井上ビルの貸事務所・賃貸オフィス情報
井上ビルの貸事務所・賃貸オフィス情報
井上ビル
- エレベーター
- 新耐震基準
井上ビルの空室フロアリスト
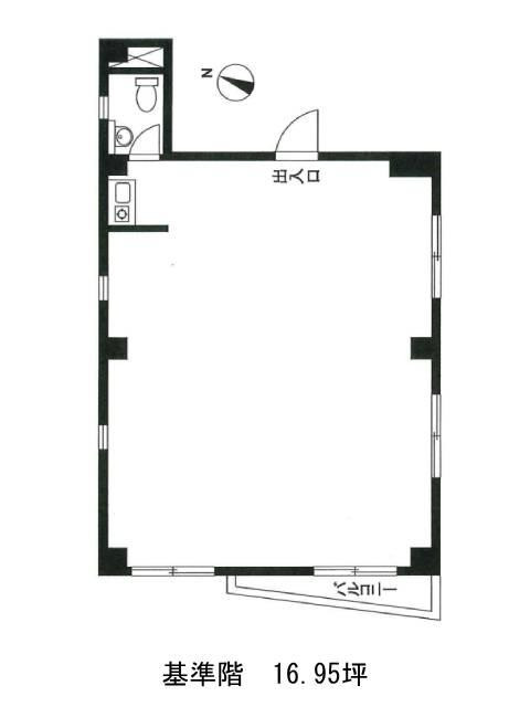
| 階数 | 面積 | 賃料+共益費 | 保証金 | 入居時期 | 更新料 | 償却費 | 礼金 | 検討 | 平面図 | 詳細 |
|---|---|---|---|---|---|---|---|---|---|---|
| 3 | 16.95坪 |
209,000円12,331円/坪
|
54万円
|
即 | 新1ケ月 | なし | 2ケ月 |
井上ビルの物件情報
井上ビル(江東区深川)は門前仲町駅徒歩5分、清澄白河駅徒歩11分、越中島駅徒歩14分の賃貸オフィスです。
井上ビルのアクセス
井上ビルの募集終了区画
| 階数 | 面積 | 賃料+共益費 | 保証金 | 入居時期 | 更新料 | 償却費 | 礼金 | 平面図 | 詳細 |
|---|---|---|---|---|---|---|---|---|---|
| 4 | 16.95坪 | − | − | 募集終了 | − | − | − |


