ASKビル4階の貸事務所・賃貸オフィス情報
ASKビル4階の賃貸オフィス・貸事務所情報
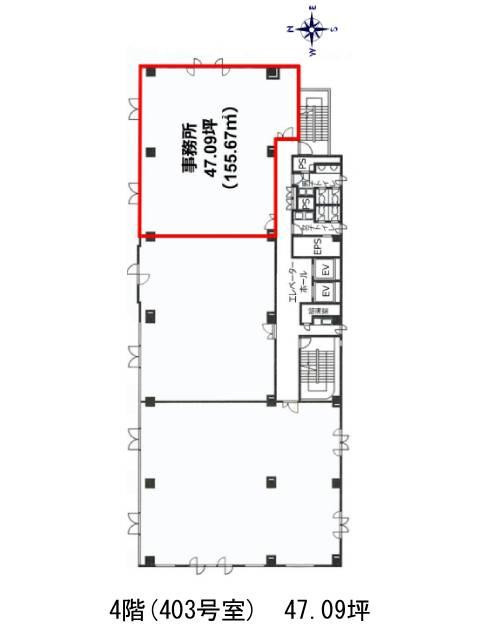
ASKビルのフロア情報
募集階数
4階
面積
47.09坪
賃料+共益費
839,143円
17,820円/坪
保証金
367万円
入居時期
2026年6月上旬
更新料
なし
償却費
なし
礼金
なし
ASKビル
- エレベーター
- 個別空調
- 男女別トイレ
- 駐車場
- 新耐震基準
ASKビルのフロア情報
募集階数
4階
面積
47.09坪
賃料+共益費
839,143円
17,820円/坪
保証金
367万円
入居時期
2026年6月上旬
更新料
なし
償却費
なし
礼金
なし
ASKビルの物件情報
ASKビル(江東区東陽)は東陽町駅徒歩2分、南砂町駅徒歩13分の賃貸オフィスです。
ASKビルのアクセス
ASKビルのテナント募集中区画
| 階数 | 面積 | 賃料+共益費 | 保証金 | 入居時期 | 検討 | 図面 | 詳細 |
|---|---|---|---|---|---|---|---|
| 4 | 47.09坪 |
839,143円17,820円/坪
|
367万円
|
2026年6月上旬 |


