メディカルビル門前仲町2階の貸事務所・賃貸オフィス情報
メディカルビル門前仲町2階の賃貸オフィス・貸事務所情報
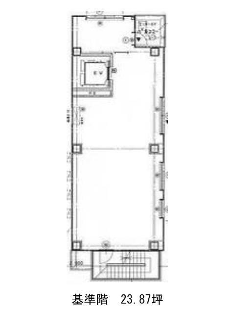
メディカルビル門前仲町のフロア情報
募集階数
2階
面積
23.87坪
賃料+共益費
548,900円
22,995円/坪
保証金
299万円
入居時期
即
更新料
新1ケ月
償却費
2ケ月
礼金
なし
メディカルビル門前仲町
- エレベーター
- 新耐震基準
メディカルビル門前仲町のフロア情報
募集階数
2階
面積
23.87坪
賃料+共益費
548,900円
22,995円/坪
保証金
299万円
入居時期
即
更新料
新1ケ月
償却費
2ケ月
礼金
なし
メディカルビル門前仲町の物件情報
メディカルビル門前仲町(江東区富岡)は門前仲町駅徒歩3分、木場駅徒歩7分、越中島駅徒歩11分の賃貸オフィスです。
メディカルビル門前仲町のアクセス
メディカルビル門前仲町のテナント募集中区画
| 階数 | 面積 | 賃料+共益費 | 保証金 | 入居時期 | 検討 | 図面 | 詳細 |
|---|---|---|---|---|---|---|---|
| 2 | 23.87坪 |
548,900円22,995円/坪
|
299万円
|
即 |


