宮崎ビル5階の貸事務所・賃貸オフィス情報
宮崎ビル5階の賃貸オフィス・貸事務所情報
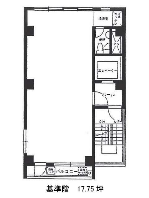
宮崎ビルのフロア情報
募集階数
5階
面積
17.75坪
賃料+共益費
292,875円
16,500円/坪
保証金
159万円
入居時期
相談
更新料
新1ケ月
償却費
2ケ月
礼金
なし
宮崎ビル
- エレベーター
- 男女共用トイレ
- 新耐震基準
宮崎ビルのフロア情報
募集階数
5階
面積
17.75坪
賃料+共益費
292,875円
16,500円/坪
保証金
159万円
入居時期
相談
更新料
新1ケ月
償却費
2ケ月
礼金
なし
宮崎ビルの物件情報
宮崎ビル(港区海岸)は竹芝駅徒歩3分、大門駅徒歩6分、浜松町駅徒歩7分の賃貸オフィスです。
宮崎ビルのアクセス
宮崎ビルのテナント募集中区画
| 階数 | 面積 | 賃料+共益費 | 保証金 | 入居時期 | 検討 | 図面 | 詳細 |
|---|---|---|---|---|---|---|---|
| 5 | 17.75坪 |
292,875円16,500円/坪
|
159万円
|
相談 |


