クーカイテラス元麻布地下1階の貸事務所・賃貸オフィス情報
クーカイテラス元麻布地下1階の賃貸オフィス・貸事務所情報
クーカイテラス元麻布のフロア情報
募集階数
地下1階
面積
22.42坪
賃料+共益費
700,000円
31,223円/坪
保証金
121万円
入居時期
即
更新料
新1ケ月
償却費
なし
礼金
1ケ月
クーカイテラス元麻布
- 物件番号
- 121-00189
- 所在地
- 東京都港区元麻布3-5-2
- 最寄駅
- 竣工年
- 2024年9月
- 規模
- 地上3階/地下1階
- エレベーター
- 新耐震基準
クーカイテラス元麻布のフロア情報
募集階数
地下1階
面積
22.42坪
賃料+共益費
700,000円
31,223円/坪
保証金
121万円
入居時期
即
更新料
新1ケ月
償却費
なし
礼金
1ケ月
クーカイテラス元麻布の物件情報
クーカイテラス元麻布のアクセス
クーカイテラス元麻布のテナント募集中区画
| 階数 | 面積 | 賃料+共益費 | 保証金 | 入居時期 | 検討 | 図面 | 詳細 |
|---|---|---|---|---|---|---|---|
| 地下1 | 20.61坪 |
600,000円29,113円/坪
|
103万円
|
即 | |||
| 地下1 | 22.42坪 |
700,000円31,223円/坪
|
121万円
|
即 | |||
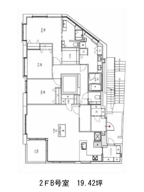
| 2 | 19.42坪 |
1,850,000円95,263円/坪
|
327万円
|
即 |


