メトロシティ神谷町8階の貸事務所・賃貸オフィス情報
メトロシティ神谷町8階の賃貸オフィス・貸事務所情報
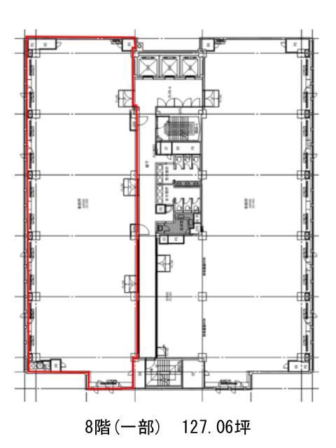
メトロシティ神谷町のフロア情報
募集階数
8階
面積
127.06坪
賃料+共益費
応相談
応相談
保証金
応相談
入居時期
2026年6月上旬
更新料
なし
償却費
なし
礼金
なし
メトロシティ神谷町
- 物件番号
- 122-00059
- 所在地
- 東京都港区虎ノ門5-1-5
- 竣工年
- 1986年10月
- 規模
- 地上8階/地下2階
- エレベーター
- セントラル
- 男女別トイレ
- 駐車場
- 新耐震基準
メトロシティ神谷町のフロア情報
募集階数
8階
面積
127.06坪
賃料+共益費
応相談
応相談
保証金
応相談
入居時期
2026年6月上旬
更新料
なし
償却費
なし
礼金
なし
メトロシティ神谷町の物件情報
メトロシティ神谷町(港区虎ノ門)は神谷町駅徒歩1分、虎ノ門ヒルズ駅徒歩6分、御成門駅徒歩9分の賃貸オフィスです。
メトロシティ神谷町のアクセス
メトロシティ神谷町のテナント募集中区画
| 階数 | 面積 | 賃料+共益費 | 保証金 | 入居時期 | 検討 | 図面 | 詳細 |
|---|---|---|---|---|---|---|---|
| 7 | 53.90坪 |
応相談応相談
|
応相談
|
2026年6月上旬 | |||
| 8 | 127.06坪 |
応相談応相談
|
応相談
|
2026年6月上旬 |


