アイボリー芝3階の貸事務所・賃貸オフィス情報
アイボリー芝3階の賃貸オフィス・貸事務所情報
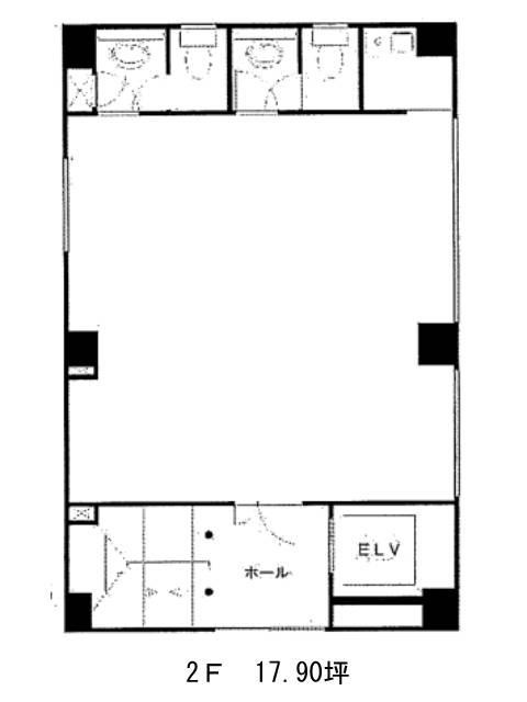
アイボリー芝のフロア情報
募集階数
3階
面積
17.90坪
賃料+共益費
275,000円
15,363円/坪
保証金
168万円
入居時期
即
更新料
新1ケ月
償却費
1ケ月
礼金
2ケ月
アイボリー芝
- エレベーター
- 男女別トイレ
- 新耐震基準
アイボリー芝のフロア情報
募集階数
3階
面積
17.90坪
賃料+共益費
275,000円
15,363円/坪
保証金
168万円
入居時期
即
更新料
新1ケ月
償却費
1ケ月
礼金
2ケ月
アイボリー芝の物件情報
アイボリー芝(港区芝)は三田駅徒歩6分、芝公園駅徒歩7分、田町駅徒歩8分の賃貸オフィスです。
アイボリー芝のアクセス
アイボリー芝のテナント募集中区画
| 階数 | 面積 | 賃料+共益費 | 保証金 | 入居時期 | 検討 | 図面 | 詳細 |
|---|---|---|---|---|---|---|---|
| 3 | 17.90坪 |
275,000円15,363円/坪
|
168万円
|
即 |


