尾家ビル5階の貸事務所・賃貸オフィス情報
尾家ビル5階の賃貸オフィス・貸事務所情報
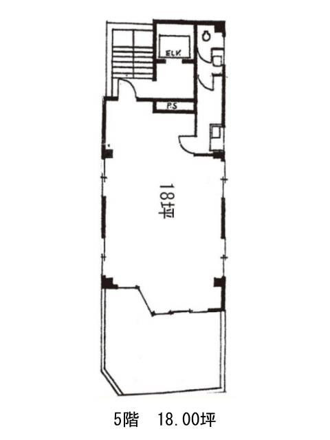
尾家ビルのフロア情報
募集階数
5階
面積
18.00坪
賃料+共益費
217,800円
12,100円/坪
保証金
118万円
入居時期
相談
更新料
新1ケ月
償却費
2ケ月
礼金
なし
尾家ビル
- エレベーター
- 個別空調
- 男女共用トイレ
- 新耐震基準
尾家ビルのフロア情報
募集階数
5階
面積
18.00坪
賃料+共益費
217,800円
12,100円/坪
保証金
118万円
入居時期
相談
更新料
新1ケ月
償却費
2ケ月
礼金
なし
尾家ビルの物件情報
尾家ビル(港区芝)は三田駅徒歩5分、芝公園駅徒歩8分、田町駅徒歩9分の賃貸オフィスです。
尾家ビルのアクセス
尾家ビルのテナント募集中区画
| 階数 | 面積 | 賃料+共益費 | 保証金 | 入居時期 | 検討 | 図面 | 詳細 |
|---|---|---|---|---|---|---|---|
| 5 | 18.00坪 |
217,800円12,100円/坪
|
118万円
|
相談 |


