一松ビル本館1階の貸事務所・賃貸オフィス情報
一松ビル本館1階の賃貸オフィス・貸事務所情報
一松ビル本館のフロア情報
募集階数
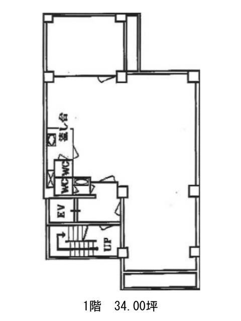
1階
面積
34.00坪
賃料+共益費
654,500円
19,250円/坪
保証金
306万円
入居時期
2026年1月
更新料
新1ケ月
償却費
15%
礼金
1ケ月
一松ビル本館
- エレベーター
- 個別空調
- 男女別トイレ
- 旧耐震基準
一松ビル本館のフロア情報
募集階数
1階
面積
34.00坪
賃料+共益費
654,500円
19,250円/坪
保証金
306万円
入居時期
2026年1月
更新料
新1ケ月
償却費
15%
礼金
1ケ月
一松ビル本館の物件情報
一松ビル本館(港区芝公園)は大門駅徒歩2分、浜松町駅徒歩6分、芝公園駅徒歩6分の賃貸オフィスです。
一松ビル本館のアクセス
一松ビル本館のテナント募集中区画
| 階数 | 面積 | 賃料+共益費 | 保証金 | 入居時期 | 検討 | 図面 | 詳細 |
|---|---|---|---|---|---|---|---|
| 1 | 34.00坪 |
654,500円19,250円/坪
|
306万円
|
2026年1月 |


