南青山4丁目1棟貸1-2Fの貸事務所・賃貸オフィス情報
南青山4丁目1棟貸1-2Fの賃貸オフィス・貸事務所情報
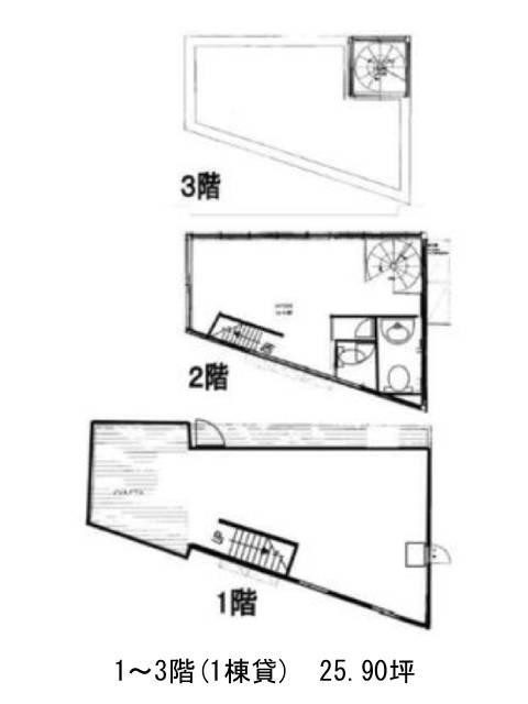
南青山4丁目1棟貸のフロア情報
募集階数
1-2F
面積
25.71坪
賃料+共益費
770,000円
29,949円/坪
保証金
840万円
入居時期
即
更新料
なし
償却費
なし
礼金
なし
南青山4丁目1棟貸
- エレベーター
- 男女別トイレ
- 新耐震基準
南青山4丁目1棟貸のフロア情報
募集階数
1-2F
面積
25.71坪
賃料+共益費
770,000円
29,949円/坪
保証金
840万円
入居時期
即
更新料
なし
償却費
なし
礼金
なし
南青山4丁目1棟貸の物件情報
南青山4丁目1棟貸(港区南青山)は表参道駅徒歩8分、乃木坂駅徒歩10分、外苑前駅徒歩15分の賃貸オフィスです。
南青山4丁目1棟貸のアクセス
南青山4丁目1棟貸のテナント募集中区画
| 階数 | 面積 | 賃料+共益費 | 保証金 | 入居時期 | 検討 | 図面 | 詳細 |
|---|---|---|---|---|---|---|---|
| 1-2F | 25.71坪 |
770,000円29,949円/坪
|
840万円
|
即 |


