パレロワイヤル南青山5階の貸事務所・賃貸オフィス情報
パレロワイヤル南青山5階の賃貸オフィス・貸事務所情報
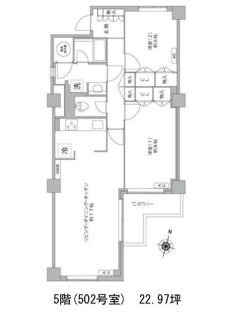
パレロワイヤル南青山のフロア情報
募集階数
5階
面積
22.97坪
賃料+共益費
555,500円
24,184円/坪
保証金
96万円
入居時期
2026年4月上旬
更新料
新1ケ月
償却費
なし
礼金
1ケ月
パレロワイヤル南青山
- エレベーター
- 旧耐震基準
パレロワイヤル南青山のフロア情報
募集階数
5階
面積
22.97坪
賃料+共益費
555,500円
24,184円/坪
保証金
96万円
入居時期
2026年4月上旬
更新料
新1ケ月
償却費
なし
礼金
1ケ月
パレロワイヤル南青山の物件情報
パレロワイヤル南青山(港区南青山)は表参道駅徒歩9分の賃貸オフィスです。
パレロワイヤル南青山のアクセス
パレロワイヤル南青山のテナント募集中区画
| 階数 | 面積 | 賃料+共益費 | 保証金 | 入居時期 | 検討 | 図面 | 詳細 |
|---|---|---|---|---|---|---|---|
| 5 | 22.97坪 |
555,500円24,184円/坪
|
96万円
|
2026年4月上旬 |


