理研機器浜松町ビル4階の貸事務所・賃貸オフィス情報
理研機器浜松町ビル4階の賃貸オフィス・貸事務所情報
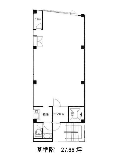
理研機器浜松町ビルのフロア情報
募集階数
4階
面積
27.66坪
賃料+共益費
462,000円
16,703円/坪
保証金
252万円
入居時期
即
更新料
新1ケ月
償却費
2ケ月
礼金
2ケ月
理研機器浜松町ビル
- エレベーター
- 個別空調
- 男女共用トイレ
- 新耐震基準
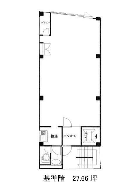
理研機器浜松町ビルのフロア情報
募集階数
4階
面積
27.66坪
賃料+共益費
462,000円
16,703円/坪
保証金
252万円
入居時期
即
更新料
新1ケ月
償却費
2ケ月
礼金
2ケ月
理研機器浜松町ビルの物件情報
理研機器浜松町ビル(港区浜松町)は浜松町駅徒歩3分、モノレール浜松町駅徒歩3分、大門駅徒歩5分の賃貸オフィスです。
理研機器浜松町ビルのアクセス
理研機器浜松町ビルのテナント募集中区画
| 階数 | 面積 | 賃料+共益費 | 保証金 | 入居時期 | 検討 | 図面 | 詳細 |
|---|---|---|---|---|---|---|---|
| 4 | 27.66坪 |
462,000円16,703円/坪
|
252万円
|
即 | |||
| 6 | 27.66坪 |
462,000円16,703円/坪
|
252万円
|
即 |


