VILLAGE AZABUDAI8階の貸事務所・賃貸オフィス情報
VILLAGE AZABUDAI8階の賃貸オフィス・貸事務所情報
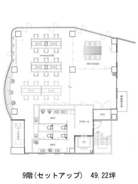
VILLAGE AZABUDAIのフロア情報
募集階数
8階
面積
49.22坪
賃料+共益費
応相談
応相談
保証金
応相談
入居時期
2026年7月上旬
更新料
なし
償却費
なし
礼金
なし
VILLAGE AZABUDAI
- 物件番号
- 145-00098
- 所在地
- 東京都港区麻布台1-11-5
- 竣工年
- 1991年1月
- 規模
- 地上9階
- エレベーター
- 個別空調
- 男女別トイレ
- 新耐震基準
VILLAGE AZABUDAIのフロア情報
募集階数
8階
面積
49.22坪
賃料+共益費
応相談
応相談
保証金
応相談
入居時期
2026年7月上旬
更新料
なし
償却費
なし
礼金
なし
VILLAGE AZABUDAIの物件情報
VILLAGE AZABUDAI(港区麻布台)は神谷町駅徒歩4分、赤羽橋駅徒歩10分、虎ノ門ヒルズ駅徒歩11分の賃貸オフィスです。
VILLAGE AZABUDAIのアクセス
VILLAGE AZABUDAIのテナント募集中区画
| 階数 | 面積 | 賃料+共益費 | 保証金 | 入居時期 | 検討 | 図面 | 詳細 |
|---|---|---|---|---|---|---|---|
| 8 | 49.22坪 |
応相談応相談
|
応相談
|
2026年7月上旬 | |||
| 9 | 49.22坪 |
応相談応相談
|
応相談
|
即 |


