ミクニ六本木ビル7階の貸事務所・賃貸オフィス情報
ミクニ六本木ビル7階の賃貸オフィス・貸事務所情報
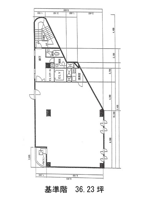
ミクニ六本木ビルのフロア情報
募集階数
7階
面積
36.23坪
賃料+共益費
1,036,176円
28,600円/坪
保証金
666万円
入居時期
2026年6月上旬
更新料
新1ケ月
償却費
2ケ月
礼金
なし
ミクニ六本木ビル
- 物件番号
- 147-00234
- 所在地
- 東京都港区六本木7-8-8
- 竣工年
- 1985年6月
- 規模
- 地上10階/地下1階
- エレベーター
- 個別空調
- 男女別トイレ
- 新耐震基準
ミクニ六本木ビルのフロア情報
募集階数
7階
面積
36.23坪
賃料+共益費
1,036,176円
28,600円/坪
保証金
666万円
入居時期
2026年6月上旬
更新料
新1ケ月
償却費
2ケ月
礼金
なし
ミクニ六本木ビルの物件情報
ミクニ六本木ビル(港区六本木)は六本木駅徒歩2分、乃木坂駅徒歩5分、六本木一丁目駅徒歩12分の賃貸オフィスです。
ミクニ六本木ビルのアクセス
ミクニ六本木ビルのテナント募集中区画
| 階数 | 面積 | 賃料+共益費 | 保証金 | 入居時期 | 検討 | 図面 | 詳細 |
|---|---|---|---|---|---|---|---|
| 7 | 36.23坪 |
1,036,176円28,600円/坪
|
666万円
|
2026年6月上旬 |


