FUSION Roppongi Terrace4階の貸事務所・賃貸オフィス情報
FUSION Roppongi Terrace4階の賃貸オフィス・貸事務所情報
FUSION Roppongi Terraceのフロア情報
募集階数
4階
面積
16.55坪
賃料+共益費
737,000円
44,533円/坪
保証金
482万円
入居時期
2026年6月上旬
更新料
新1ケ月
償却費
1ケ月
礼金
1ケ月
FUSION Roppongi Terrace
- エレベーター
- 新耐震基準
FUSION Roppongi Terraceのフロア情報
募集階数
4階
面積
16.55坪
賃料+共益費
737,000円
44,533円/坪
保証金
482万円
入居時期
2026年6月上旬
更新料
新1ケ月
償却費
1ケ月
礼金
1ケ月
FUSION Roppongi Terraceの物件情報
FUSION Roppongi Terrace(港区六本木)は六本木駅徒歩3分、乃木坂駅徒歩7分、六本木一丁目駅徒歩14分の賃貸オフィスです。
FUSION Roppongi Terraceのアクセス
FUSION Roppongi Terraceのテナント募集中区画
| 階数 | 面積 | 賃料+共益費 | 保証金 | 入居時期 | 検討 | 図面 | 詳細 |
|---|---|---|---|---|---|---|---|
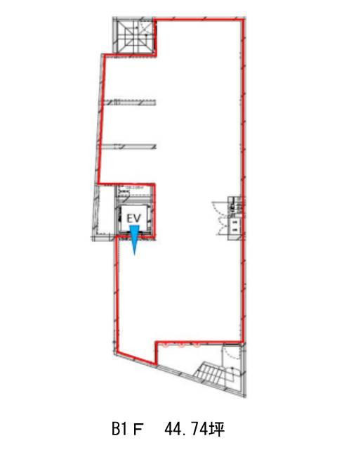
| 地下1 | 44.74坪 |
1,650,000円36,880円/坪
|
1080万円
|
2026年6月上旬 | |||
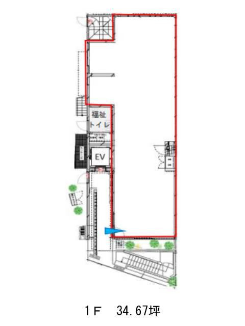
| 1 | 34.67坪 |
1,760,000円50,765円/坪
|
1152万円
|
2026年6月上旬 | |||
| 2 | 29.19坪 |
1,298,000円44,468円/坪
|
849万円
|
2026年6月上旬 | |||
| 3 | 20.72坪 |
913,000円44,064円/坪
|
597万円
|
2026年6月上旬 | |||
| 4 | 16.55坪 |
737,000円44,533円/坪
|
482万円
|
2026年6月上旬 |


