Sreed EBISU EAST 8階の貸事務所・賃貸オフィス情報
Sreed EBISU EAST 8階の賃貸オフィス・貸事務所情報
Sreed EBISU EAST のフロア情報
募集階数
8階
面積
56.47坪
賃料+共益費
1,863,510円
33,000円/坪
保証金
1829万円
入居時期
2026年7月上旬
更新料
新1ケ月
償却費
なし
礼金
なし
Sreed EBISU EAST
- エレベーター
- 個別空調
- 男女別トイレ
- 新耐震基準
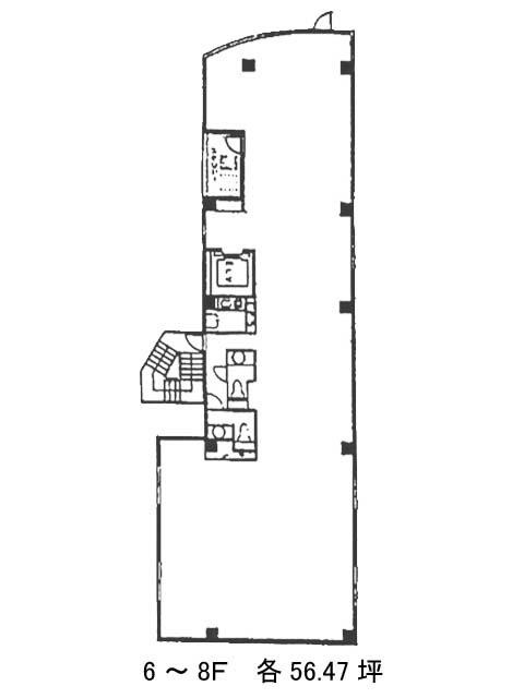
Sreed EBISU EAST のフロア情報
募集階数
8階
面積
56.47坪
賃料+共益費
1,863,510円
33,000円/坪
保証金
1829万円
入居時期
2026年7月上旬
更新料
新1ケ月
償却費
なし
礼金
なし
Sreed EBISU EAST の物件情報
Sreed EBISU EAST (渋谷区恵比寿)は恵比寿駅徒歩7分、広尾駅徒歩13分の賃貸オフィスです。
Sreed EBISU EAST のアクセス
Sreed EBISU EAST のテナント募集中区画
| 階数 | 面積 | 賃料+共益費 | 保証金 | 入居時期 | 検討 | 図面 | 詳細 |
|---|---|---|---|---|---|---|---|
| 7 | 56.47坪 |
1,863,510円33,000円/坪
|
1829万円
|
2026年7月上旬 | |||
| 8 | 56.47坪 |
1,863,510円33,000円/坪
|
1829万円
|
2026年7月上旬 |


