ラピツカキヌマビル2階の貸事務所・賃貸オフィス情報
ラピツカキヌマビル2階の賃貸オフィス・貸事務所情報
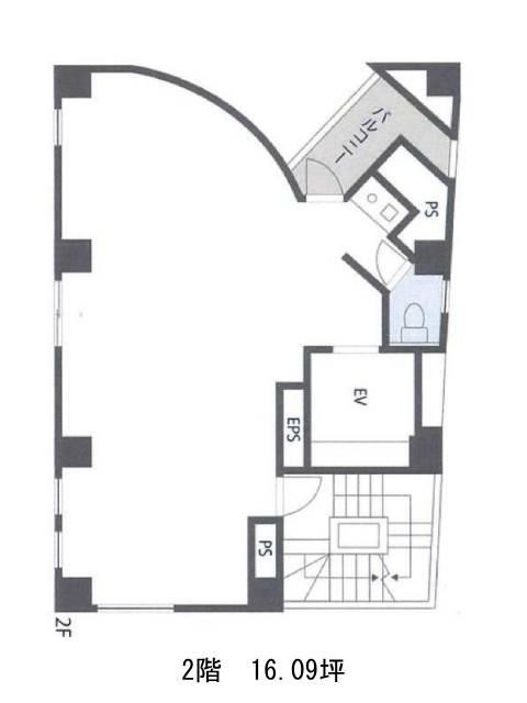
ラピツカキヌマビルのフロア情報
募集階数
2階
面積
16.09坪
賃料+共益費
297,000円
18,460円/坪
保証金
120万円
入居時期
相談
更新料
新1ケ月
償却費
なし
礼金
1ケ月
ラピツカキヌマビル
- エレベーター
- 男女共用トイレ
- 新耐震基準
ラピツカキヌマビルのフロア情報
募集階数
2階
面積
16.09坪
賃料+共益費
297,000円
18,460円/坪
保証金
120万円
入居時期
相談
更新料
新1ケ月
償却費
なし
礼金
1ケ月
ラピツカキヌマビルの物件情報
ラピツカキヌマビル(渋谷区恵比寿)は広尾駅徒歩11分、恵比寿駅徒歩11分の賃貸オフィスです。
ラピツカキヌマビルのアクセス
ラピツカキヌマビルのテナント募集中区画
| 階数 | 面積 | 賃料+共益費 | 保証金 | 入居時期 | 検討 | 図面 | 詳細 |
|---|---|---|---|---|---|---|---|
| 2 | 16.09坪 |
297,000円18,460円/坪
|
120万円
|
相談 |


