Bre.S SHIBUYA4階の貸事務所・賃貸オフィス情報
Bre.S SHIBUYA4階の賃貸オフィス・貸事務所情報
Bre.S SHIBUYAのフロア情報
募集階数
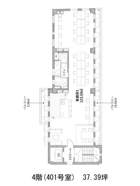
4階
面積
37.39坪
賃料+共益費
1,304,600円
34,893円/坪
保証金
224万円
入居時期
相談
更新料
新1ケ月
償却費
なし
礼金
1ケ月
Bre.S SHIBUYA
- エレベーター
- 男女別トイレ
- 新耐震基準
Bre.S SHIBUYAのフロア情報
募集階数
4階
面積
37.39坪
賃料+共益費
1,304,600円
34,893円/坪
保証金
224万円
入居時期
相談
更新料
新1ケ月
償却費
なし
礼金
1ケ月
Bre.S SHIBUYAの物件情報
Bre.S SHIBUYA(渋谷区渋谷)は渋谷駅徒歩6分、代官山駅徒歩13分、恵比寿駅徒歩13分の賃貸オフィスです。
Bre.S SHIBUYAのアクセス
Bre.S SHIBUYAのテナント募集中区画
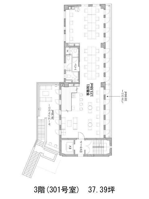
| 階数 | 面積 | 賃料+共益費 | 保証金 | 入居時期 | 検討 | 図面 | 詳細 |
|---|---|---|---|---|---|---|---|
| 3 | 37.39坪 |
1,304,600円34,893円/坪
|
224万円
|
相談 | |||
| 4 | 37.39坪 |
1,304,600円34,893円/坪
|
224万円
|
相談 |


