シティ市ヶ谷4階の貸事務所・賃貸オフィス情報
シティ市ヶ谷4階の賃貸オフィス・貸事務所情報
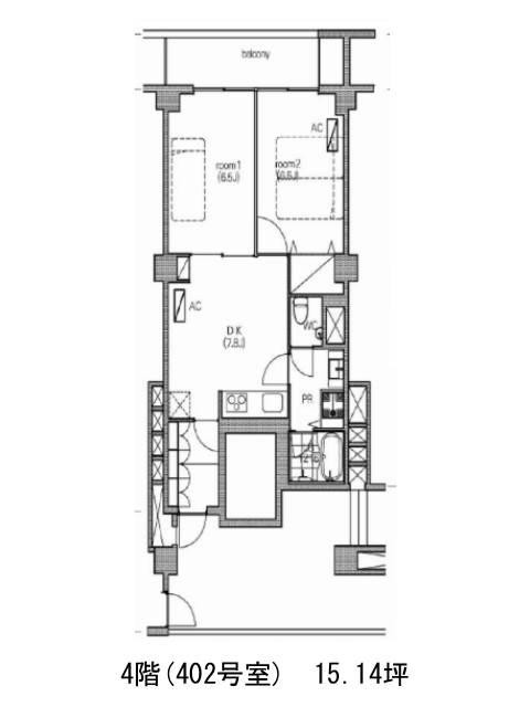
シティ市ヶ谷のフロア情報
募集階数
4階
面積
15.14坪
賃料+共益費
214,500円
14,169円/坪
保証金
36万円
入居時期
相談
更新料
新1ケ月
償却費
1ケ月
礼金
1ケ月
シティ市ヶ谷
- 物件番号
- 218-00034
- 所在地
- 東京都新宿区市谷田町2-38-3
- 竣工年
- 1972年11月
- 規模
- 地上8階/地下1階
- エレベーター
- 個別空調
- 男女共用トイレ
- 旧耐震基準
シティ市ヶ谷のフロア情報
募集階数
4階
面積
15.14坪
賃料+共益費
214,500円
14,169円/坪
保証金
36万円
入居時期
相談
更新料
新1ケ月
償却費
1ケ月
礼金
1ケ月
シティ市ヶ谷の物件情報
シティ市ヶ谷(新宿区市谷田町)は市ヶ谷駅徒歩2分、牛込神楽坂駅徒歩11分、飯田橋駅徒歩11分の賃貸オフィスです。
シティ市ヶ谷のアクセス
シティ市ヶ谷のテナント募集中区画
| 階数 | 面積 | 賃料+共益費 | 保証金 | 入居時期 | 検討 | 図面 | 詳細 |
|---|---|---|---|---|---|---|---|
| 地下1 | 26.86坪 |
413,644円15,400円/坪
|
112万円
|
即 | |||
| 4 | 15.14坪 |
214,500円14,169円/坪
|
36万円
|
相談 | |||
| 6 | 15.14坪 |
220,016円14,532円/坪
|
40万円
|
即 |


