外濠スカイビルディング3階の貸事務所・賃貸オフィス情報
外濠スカイビルディング3階の賃貸オフィス・貸事務所情報
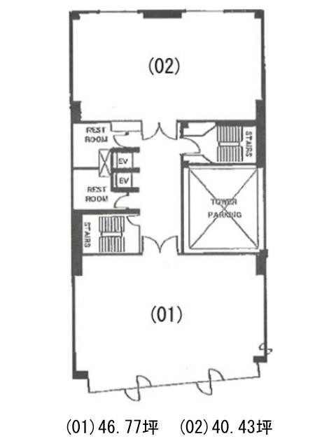
外濠スカイビルディングのフロア情報
募集階数
3階
面積
40.43坪
賃料+共益費
622,622円
15,400円/坪
保証金
323万円
入居時期
2026年6月上旬
更新料
新1ケ月
償却費
なし
礼金
1ケ月
外濠スカイビルディング
- 物件番号
- 220-00012
- 所在地
- 東京都新宿区市谷本村町2-11
- 竣工年
- 1973年9月
- 規模
- 地上10階/地下1階
- エレベーター
- 個別空調
- 男女別トイレ
- 駐車場
- 旧耐震基準
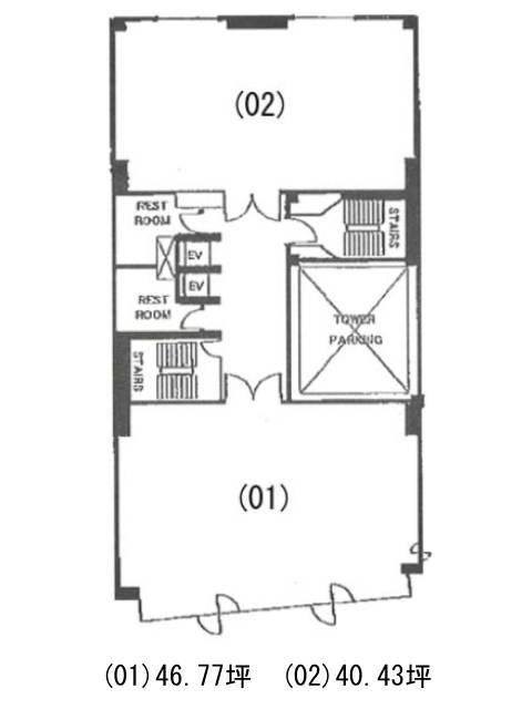
外濠スカイビルディングのフロア情報
募集階数
3階
面積
40.43坪
賃料+共益費
622,622円
15,400円/坪
保証金
323万円
入居時期
2026年6月上旬
更新料
新1ケ月
償却費
なし
礼金
1ケ月
外濠スカイビルディングの物件情報
外濠スカイビルディング(新宿区市谷本村町)は市ヶ谷駅徒歩5分、四ツ谷駅徒歩7分、曙橋駅徒歩12分の賃貸オフィスです。
外濠スカイビルディングのアクセス
外濠スカイビルディングのテナント募集中区画
| 階数 | 面積 | 賃料+共益費 | 保証金 | 入居時期 | 検討 | 図面 | 詳細 |
|---|---|---|---|---|---|---|---|
| 3 | 40.43坪 |
622,622円15,400円/坪
|
323万円
|
2026年6月上旬 | |||
| 8 | 46.77坪 |
756,270円16,170円/坪
|
400万円
|
2026年5月下旬 |


