新宿内野ビルⅡ2階の貸事務所・賃貸オフィス情報
新宿内野ビルⅡ2階の賃貸オフィス・貸事務所情報
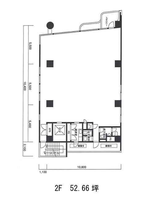
新宿内野ビルⅡのフロア情報
募集階数
2階
面積
52.66坪
賃料+共益費
868,890円
16,500円/坪
保証金
789万円
入居時期
2026年8月上旬
更新料
なし
償却費
10%
礼金
なし
新宿内野ビルⅡ
- 物件番号
- 230-00001
- 所在地
- 東京都新宿区新宿1-36-7
- 竣工年
- 1992年3月
- 規模
- 地上10階
- エレベーター
- 個別空調
- 男女別トイレ
- 新耐震基準
新宿内野ビルⅡのフロア情報
募集階数
2階
面積
52.66坪
賃料+共益費
868,890円
16,500円/坪
保証金
789万円
入居時期
2026年8月上旬
更新料
なし
償却費
10%
礼金
なし
新宿内野ビルⅡの物件情報
新宿内野ビルⅡ(新宿区新宿)は新宿御苑前駅徒歩4分、新宿三丁目駅徒歩5分、新宿駅徒歩12分の賃貸オフィスです。
新宿内野ビルⅡのアクセス
新宿内野ビルⅡのテナント募集中区画
| 階数 | 面積 | 賃料+共益費 | 保証金 | 入居時期 | 検討 | 図面 | 詳細 |
|---|---|---|---|---|---|---|---|
| 2 | 52.66坪 |
868,890円16,500円/坪
|
789万円
|
2026年8月上旬 |


