偕楽ビル(外神田)4階の貸事務所・賃貸オフィス情報
偕楽ビル(外神田)4階の賃貸オフィス・貸事務所情報
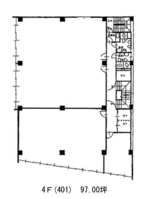
偕楽ビル(外神田)のフロア情報
募集階数
4階
面積
97.00坪
賃料+共益費
1,328,900円
13,700円/坪
保証金
1067万円
入居時期
2026年7月上旬
更新料
新1ケ月
償却費
10%
礼金
なし
偕楽ビル(外神田)
- 物件番号
- 381-00003
- 所在地
- 東京都千代田区外神田6-5-4
- 竣工年
- 1969年10月
- 規模
- 地上8階
- エレベーター
- 個別空調
- 男女別トイレ
- 駐車場
- 旧耐震基準
偕楽ビル(外神田)のフロア情報
募集階数
4階
面積
97.00坪
賃料+共益費
1,328,900円
13,700円/坪
保証金
1067万円
入居時期
2026年7月上旬
更新料
新1ケ月
償却費
10%
礼金
なし
偕楽ビル(外神田)の物件情報
偕楽ビル(外神田)(千代田区外神田)は末広町駅徒歩3分、湯島駅徒歩4分、上野広小路駅徒歩8分の賃貸オフィスです。
偕楽ビル(外神田)のアクセス
偕楽ビル(外神田)のテナント募集中区画
| 階数 | 面積 | 賃料+共益費 | 保証金 | 入居時期 | 検討 | 図面 | 詳細 |
|---|---|---|---|---|---|---|---|
| 4 | 97.00坪 |
1,328,900円13,700円/坪
|
1067万円
|
2026年7月上旬 |


