名古路ビル本館2階の貸事務所・賃貸オフィス情報
名古路ビル本館2階の賃貸オフィス・貸事務所情報
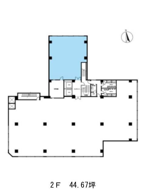
名古路ビル本館のフロア情報
募集階数
2階
面積
44.67坪
賃料+共益費
応相談
応相談
保証金
応相談
入居時期
2026年9月上旬
更新料
なし
償却費
なし
礼金
なし
名古路ビル本館
- 物件番号
- 394-00091
- 所在地
- 東京都千代田区神田錦町3-13-7
- 竣工年
- 1985年3月
- 規模
- 地上9階/地下1階
- エレベーター
- 個別空調
- 男女別トイレ
- 駐車場
- 新耐震基準
名古路ビル本館のフロア情報
募集階数
2階
面積
44.67坪
賃料+共益費
応相談
応相談
保証金
応相談
入居時期
2026年9月上旬
更新料
なし
償却費
なし
礼金
なし
名古路ビル本館の物件情報
名古路ビル本館(千代田区神田錦町)は竹橋駅徒歩5分、神保町駅徒歩7分、小川町駅徒歩7分の賃貸オフィスです。
名古路ビル本館のアクセス
名古路ビル本館のテナント募集中区画
| 階数 | 面積 | 賃料+共益費 | 保証金 | 入居時期 | 検討 | 図面 | 詳細 |
|---|---|---|---|---|---|---|---|
| 2 | 44.67坪 |
応相談応相談
|
応相談
|
2026年9月上旬 |


