さいかち坂ビル2階の貸事務所・賃貸オフィス情報
さいかち坂ビル2階の賃貸オフィス・貸事務所情報
さいかち坂ビルのフロア情報
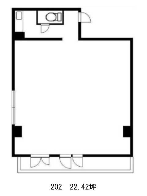
募集階数
2階
面積
22.04坪
賃料+共益費
315,172円
14,300円/坪
保証金
143万円
入居時期
2026年4月上旬
更新料
新1ケ月
償却費
2ケ月
礼金
1ケ月
さいかち坂ビル
- 物件番号
- 399-00006
- 所在地
- 東京都千代田区神田駿河台2-11-16
- 竣工年
- 1984年5月
- 規模
- 地上11階/地下1階
- エレベーター
- 個別空調
- 男女共用トイレ
- 新耐震基準
さいかち坂ビルのフロア情報
募集階数
2階
面積
22.04坪
賃料+共益費
315,172円
14,300円/坪
保証金
143万円
入居時期
2026年4月上旬
更新料
新1ケ月
償却費
2ケ月
礼金
1ケ月
さいかち坂ビルの物件情報
さいかち坂ビル(千代田区神田駿河台)は水道橋駅徒歩5分、御茶ノ水駅徒歩8分、神保町駅徒歩10分の賃貸オフィスです。
さいかち坂ビルのアクセス
さいかち坂ビルのテナント募集中区画
| 階数 | 面積 | 賃料+共益費 | 保証金 | 入居時期 | 検討 | 図面 | 詳細 |
|---|---|---|---|---|---|---|---|
| 2 | 22.04坪 |
315,172円14,300円/坪
|
143万円
|
2026年4月上旬 | |||
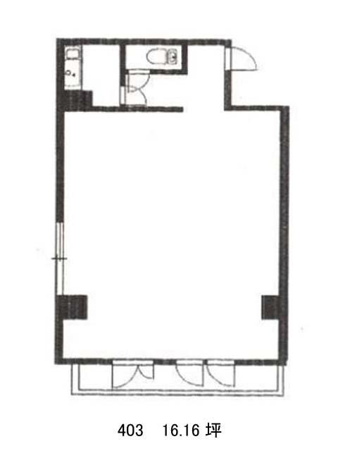
| 4 | 16.16坪 |
231,088円14,300円/坪
|
105万円
|
2026年4月上旬 |


