木本ビル6階の貸事務所・賃貸オフィス情報
木本ビル6階の賃貸オフィス・貸事務所情報
木本ビルのフロア情報
募集階数
6階
面積
20.17坪
賃料+共益費
242,000円
11,998円/坪
保証金
66万円
入居時期
即
更新料
なし
償却費
なし
礼金
なし
木本ビル
- 物件番号
- 550-00065
- 所在地
- 東京都台東区小島2-18-7
- 竣工年
- 1971年4月
- 規模
- 地上6階
- エレベーター
- 旧耐震基準
木本ビルのフロア情報
募集階数
6階
面積
20.17坪
賃料+共益費
242,000円
11,998円/坪
保証金
66万円
入居時期
即
更新料
なし
償却費
なし
礼金
なし
木本ビルの物件情報
木本ビル(台東区小島)は新御徒町駅徒歩1分、稲荷町駅徒歩9分、仲御徒町駅徒歩10分の賃貸オフィスです。
木本ビルのアクセス
木本ビルのテナント募集中区画
| 階数 | 面積 | 賃料+共益費 | 保証金 | 入居時期 | 検討 | 図面 | 詳細 |
|---|---|---|---|---|---|---|---|
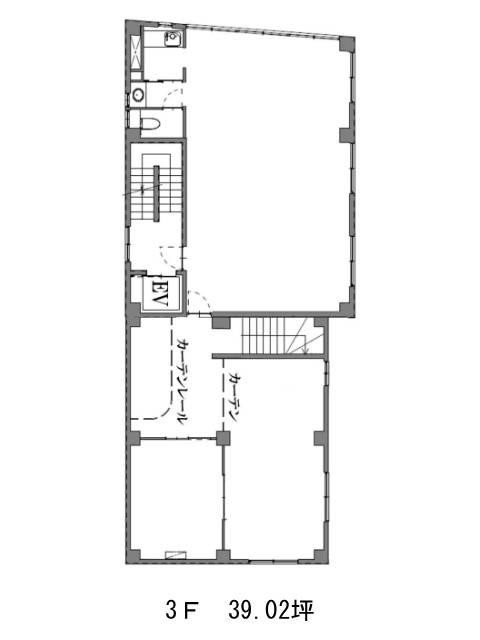
| 3 | 39.02坪 |
440,000円11,277円/坪
|
120万円
|
即 | |||
| 6 | 20.17坪 |
242,000円11,998円/坪
|
66万円
|
即 |


