舶来堂ビル9階の貸事務所・賃貸オフィス情報
舶来堂ビル9階の賃貸オフィス・貸事務所情報
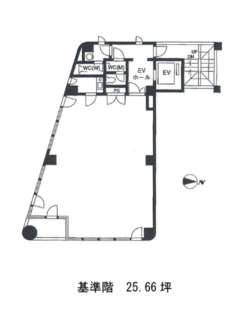
舶来堂ビルのフロア情報
募集階数
9階
面積
25.66坪
賃料+共益費
423,500円
16,505円/坪
保証金
220万円
入居時期
即
更新料
新1ケ月
償却費
2ケ月
礼金
なし
舶来堂ビル
- 物件番号
- 552-00248
- 所在地
- 東京都台東区上野6-6-1
- 竣工年
- 2000年11月
- 規模
- 地上10階/地下1階
- エレベーター
- 個別空調
- 新耐震基準
舶来堂ビルのフロア情報
募集階数
9階
面積
25.66坪
賃料+共益費
423,500円
16,505円/坪
保証金
220万円
入居時期
即
更新料
新1ケ月
償却費
2ケ月
礼金
なし
舶来堂ビルの物件情報
舶来堂ビル(台東区上野)は上野御徒町駅徒歩2分、仲御徒町駅徒歩3分、御徒町駅徒歩4分の賃貸オフィスです。
舶来堂ビルのアクセス
舶来堂ビルのテナント募集中区画
| 階数 | 面積 | 賃料+共益費 | 保証金 | 入居時期 | 検討 | 図面 | 詳細 |
|---|---|---|---|---|---|---|---|
| 9 | 25.66坪 |
423,500円16,505円/坪
|
220万円
|
即 |


