中川ビル3階の貸事務所・賃貸オフィス情報
中川ビル3階の賃貸オフィス・貸事務所情報
中川ビルのフロア情報
募集階数
3階
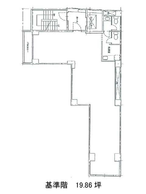
面積
19.86坪
賃料+共益費
応相談
応相談
保証金
応相談
入居時期
相談
更新料
なし
償却費
なし
礼金
なし
中川ビル
- エレベーター
- 個別空調
- 男女別トイレ
- 新耐震基準
中川ビルのフロア情報
募集階数
3階
面積
19.86坪
賃料+共益費
応相談
応相談
保証金
応相談
入居時期
相談
更新料
なし
償却費
なし
礼金
なし
中川ビルの物件情報
中川ビル(台東区浅草)は浅草駅徒歩2分、本所吾妻橋駅徒歩11分、田原町駅徒歩11分の賃貸オフィスです。
中川ビルのアクセス
中川ビルのテナント募集中区画
| 階数 | 面積 | 賃料+共益費 | 保証金 | 入居時期 | 検討 | 図面 | 詳細 |
|---|---|---|---|---|---|---|---|
| 3 | 19.86坪 |
応相談応相談
|
応相談
|
相談 |


