PMO秋葉原北7階の貸事務所・賃貸オフィス情報
PMO秋葉原北7階の賃貸オフィス・貸事務所情報
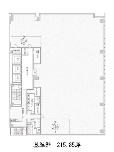
PMO秋葉原北のフロア情報
募集階数
7階
面積
215.85坪
賃料+共益費
応相談
応相談
保証金
応相談
入居時期
相談
更新料
なし
償却費
なし
礼金
なし
PMO秋葉原北
- エレベーター
- 男女別トイレ
- 新耐震基準
PMO秋葉原北のフロア情報
募集階数
7階
面積
215.85坪
賃料+共益費
応相談
応相談
保証金
応相談
入居時期
相談
更新料
なし
償却費
なし
礼金
なし
PMO秋葉原北の物件情報
PMO秋葉原北(台東区台東)は仲御徒町駅徒歩6分、末広町駅徒歩7分、秋葉原駅徒歩8分の賃貸オフィスです。
PMO秋葉原北のアクセス
PMO秋葉原北のテナント募集中区画
| 階数 | 面積 | 賃料+共益費 | 保証金 | 入居時期 | 検討 | 図面 | 詳細 |
|---|---|---|---|---|---|---|---|
| 7 | 215.85坪 |
応相談応相談
|
応相談
|
相談 |


