MPR東上野ビル9階の貸事務所・賃貸オフィス情報
MPR東上野ビル9階の賃貸オフィス・貸事務所情報
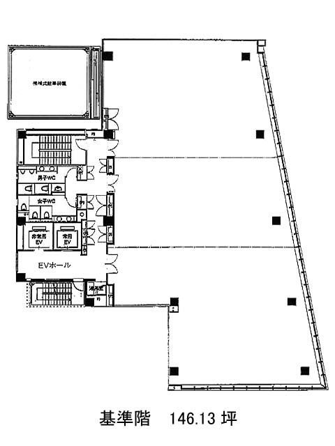
MPR東上野ビルのフロア情報
募集階数
9階
面積
87.16坪
賃料+共益費
応相談
応相談
保証金
応相談
入居時期
2026年10月
更新料
なし
償却費
なし
礼金
なし
MPR東上野ビル
- エレベーター
- 個別空調
- 男女別トイレ
- 駐車場
- 新耐震基準
MPR東上野ビルのフロア情報
募集階数
9階
面積
87.16坪
賃料+共益費
応相談
応相談
保証金
応相談
入居時期
2026年10月
更新料
なし
償却費
なし
礼金
なし
MPR東上野ビルの物件情報
MPR東上野ビル(台東区東上野)は稲荷町駅徒歩2分、新御徒町駅徒歩8分、上野駅徒歩8分の賃貸オフィスです。
MPR東上野ビルのアクセス
MPR東上野ビルのテナント募集中区画
| 階数 | 面積 | 賃料+共益費 | 保証金 | 入居時期 | 検討 | 図面 | 詳細 |
|---|---|---|---|---|---|---|---|
| 9 | 87.16坪 |
応相談応相談
|
応相談
|
2026年10月 |


