WORK VILLA KYOBASHI5階の貸事務所・賃貸オフィス情報
WORK VILLA KYOBASHI5階の賃貸オフィス・貸事務所情報
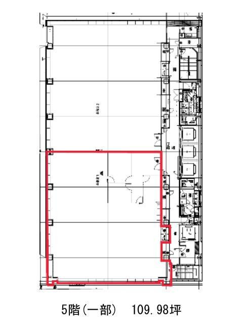
WORK VILLA KYOBASHIのフロア情報
募集階数
5階
面積
109.98坪
賃料+共益費
応相談
応相談
保証金
応相談
入居時期
2026年6月上旬
更新料
なし
償却費
なし
礼金
なし
WORK VILLA KYOBASHI
- エレベーター
- 個別空調
- 男女別トイレ
- 駐車場
- 新耐震基準
WORK VILLA KYOBASHIのフロア情報
募集階数
5階
面積
109.98坪
賃料+共益費
応相談
応相談
保証金
応相談
入居時期
2026年6月上旬
更新料
なし
償却費
なし
礼金
なし
WORK VILLA KYOBASHIの物件情報
WORK VILLA KYOBASHI(中央区京橋)は宝町駅徒歩3分、京橋駅徒歩5分、日本橋駅徒歩7分の賃貸オフィスです。
WORK VILLA KYOBASHIのアクセス
WORK VILLA KYOBASHIのテナント募集中区画
| 階数 | 面積 | 賃料+共益費 | 保証金 | 入居時期 | 検討 | 図面 | 詳細 |
|---|---|---|---|---|---|---|---|
| 5 | 109.98坪 |
応相談応相談
|
応相談
|
2026年6月上旬 | |||
| 8 | 223.50坪 |
応相談応相談
|
応相談
|
2026年9月上旬 |


