晴海アイランドトリトンスクエアオフィスタワーZ棟30階の貸事務所・賃貸オフィス情報
晴海アイランドトリトンスクエアオフィスタワーZ棟30階の賃貸オフィス・貸事務所情報
晴海アイランドトリトンスクエアオフィスタワーZ棟のフロア情報
募集階数
30階
面積
34.68坪
賃料+共益費
応相談
応相談
保証金
応相談
入居時期
2026年6月上旬
更新料
なし
償却費
なし
礼金
なし
晴海アイランドトリトンスクエアオフィスタワーZ棟
- エレベーター
- セントラル+個別空調
- 男女別トイレ
- 駐車場
- 新耐震基準
晴海アイランドトリトンスクエアオフィスタワーZ棟のフロア情報
募集階数
30階
面積
34.68坪
賃料+共益費
応相談
応相談
保証金
応相談
入居時期
2026年6月上旬
更新料
なし
償却費
なし
礼金
なし
晴海アイランドトリトンスクエアオフィスタワーZ棟の物件情報
晴海アイランドトリトンスクエアオフィスタワーZ棟(中央区晴海)は勝どき駅徒歩7分、月島駅徒歩13分の賃貸オフィスです。
晴海アイランドトリトンスクエアオフィスタワーZ棟のアクセス
晴海アイランドトリトンスクエアオフィスタワーZ棟のテナント募集中区画
| 階数 | 面積 | 賃料+共益費 | 保証金 | 入居時期 | 検討 | 図面 | 詳細 |
|---|---|---|---|---|---|---|---|
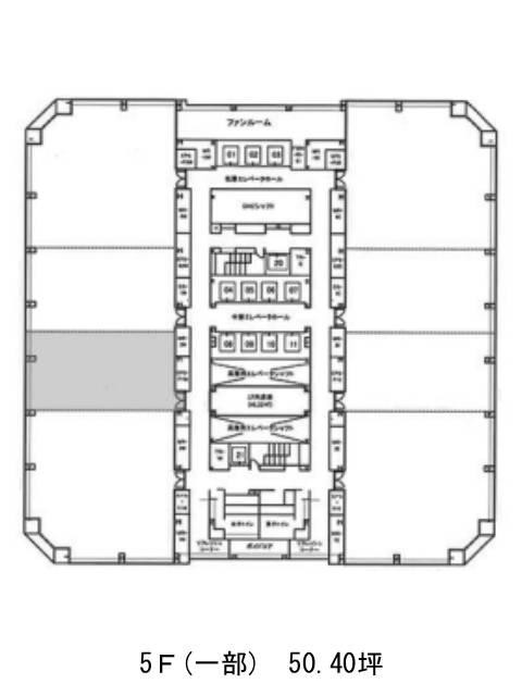
| 5 | 50.40坪 |
応相談応相談
|
応相談
|
相談 | |||
| 22 | 163.94坪 |
応相談応相談
|
応相談
|
即 | |||
| 22 | 163.94坪 |
応相談応相談
|
応相談
|
即 | |||
| 30 | 415.95坪 |
応相談応相談
|
応相談
|
2026年6月上旬 | |||
| 30 | 34.68坪 |
応相談応相談
|
応相談
|
2026年6月上旬 |


