兜町第6葉山ビル5階の貸事務所・賃貸オフィス情報
兜町第6葉山ビル5階の賃貸オフィス・貸事務所情報
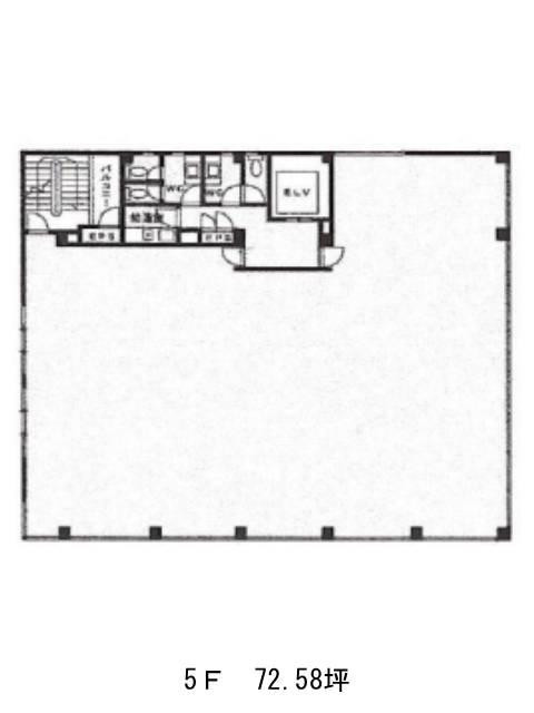
兜町第6葉山ビルのフロア情報
募集階数
5階
面積
72.58坪
賃料+共益費
1,437,084円
19,800円/坪
保証金
783万円
入居時期
即
更新料
新1ケ月
償却費
10%
礼金
なし
兜町第6葉山ビル
- 物件番号
- 645-00008
- 所在地
- 東京都中央区日本橋兜町17-2
- 竣工年
- 1989年5月
- 規模
- 地上6階/地下1階
- エレベーター
- 個別空調
- 駐車場
- 新耐震基準
兜町第6葉山ビルのフロア情報
募集階数
5階
面積
72.58坪
賃料+共益費
1,437,084円
19,800円/坪
保証金
783万円
入居時期
即
更新料
新1ケ月
償却費
10%
礼金
なし
兜町第6葉山ビルの物件情報
兜町第6葉山ビル(中央区日本橋兜町)は茅場町駅徒歩4分、日本橋駅徒歩5分、八丁堀駅徒歩6分の賃貸オフィスです。
兜町第6葉山ビルのアクセス
兜町第6葉山ビルのテナント募集中区画
| 階数 | 面積 | 賃料+共益費 | 保証金 | 入居時期 | 検討 | 図面 | 詳細 |
|---|---|---|---|---|---|---|---|
| 3 | 72.58坪 |
1,437,084円19,800円/坪
|
914万円
|
2026年5月上旬 | |||
| 5 | 72.58坪 |
1,437,084円19,800円/坪
|
783万円
|
即 |


