バンセイ室町ビル5階の貸事務所・賃貸オフィス情報
バンセイ室町ビル5階の賃貸オフィス・貸事務所情報
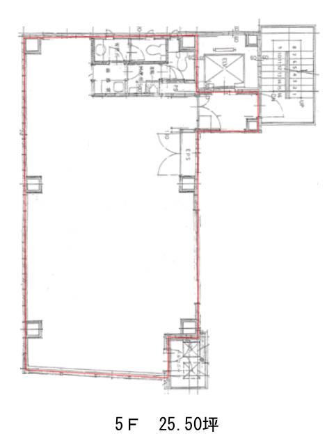
バンセイ室町ビルのフロア情報
募集階数
5階
面積
25.50坪
賃料+共益費
645,150円
25,300円/坪
保証金
586万円
入居時期
2026年6月中旬
更新料
新1ケ月
償却費
2ケ月
礼金
なし
バンセイ室町ビル
- 物件番号
- 648-00049
- 所在地
- 東京都中央区日本橋室町4-3-12
- 竣工年
- 1997年9月
- 規模
- 地上10階/地下1階
- エレベーター
- 個別空調
- 男女別トイレ
- 新耐震基準
バンセイ室町ビルのフロア情報
募集階数
5階
面積
25.50坪
賃料+共益費
645,150円
25,300円/坪
保証金
586万円
入居時期
2026年6月中旬
更新料
新1ケ月
償却費
2ケ月
礼金
なし
バンセイ室町ビルの物件情報
バンセイ室町ビル(中央区日本橋室町)は新日本橋駅徒歩2分、三越前駅徒歩4分、神田駅徒歩4分の賃貸オフィスです。
バンセイ室町ビルのアクセス
バンセイ室町ビルのテナント募集中区画
| 階数 | 面積 | 賃料+共益費 | 保証金 | 入居時期 | 検討 | 図面 | 詳細 |
|---|---|---|---|---|---|---|---|
| 5 | 25.50坪 |
645,150円25,300円/坪
|
586万円
|
2026年6月中旬 |


