東京ネオンビル2階の貸事務所・賃貸オフィス情報
東京ネオンビル2階の賃貸オフィス・貸事務所情報
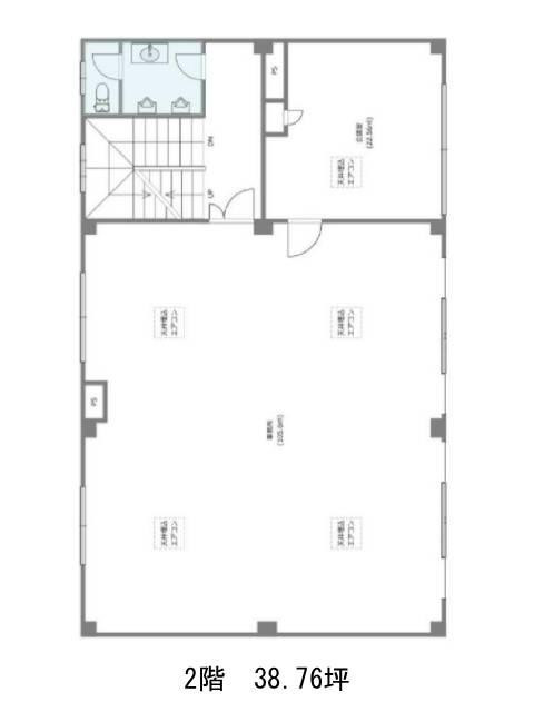
東京ネオンビルのフロア情報
募集階数
2階
面積
38.76坪
賃料+共益費
374,000円
9,649円/坪
保証金
64万円
入居時期
2026年4月上旬
更新料
なし
償却費
なし
礼金
1ケ月
東京ネオンビル
- エレベーター
- 男女別トイレ
- 新耐震基準
東京ネオンビルのフロア情報
募集階数
2階
面積
38.76坪
賃料+共益費
374,000円
9,649円/坪
保証金
64万円
入居時期
2026年4月上旬
更新料
なし
償却費
なし
礼金
1ケ月
東京ネオンビルの物件情報
東京ネオンビル(品川区南大井)は大森駅徒歩6分、大森海岸駅徒歩13分、立会川駅徒歩14分の賃貸オフィスです。
東京ネオンビルのアクセス
東京ネオンビルのテナント募集中区画
| 階数 | 面積 | 賃料+共益費 | 保証金 | 入居時期 | 検討 | 図面 | 詳細 |
|---|---|---|---|---|---|---|---|
| 2 | 38.76坪 |
374,000円9,649円/坪
|
64万円
|
2026年4月上旬 |


