大崎ブライトコアビル5階の貸事務所・賃貸オフィス情報
大崎ブライトコアビル5階の賃貸オフィス・貸事務所情報
大崎ブライトコアビルのフロア情報
募集階数
5階
面積
448.89坪
賃料+共益費
応相談
応相談
保証金
応相談
入居時期
2026年10月上旬
更新料
なし
償却費
なし
礼金
なし
大崎ブライトコアビル
- エレベーター
- 男女別トイレ
- 新耐震基準
大崎ブライトコアビルのフロア情報
募集階数
5階
面積
448.89坪
賃料+共益費
応相談
応相談
保証金
応相談
入居時期
2026年10月上旬
更新料
なし
償却費
なし
礼金
なし
大崎ブライトコアビルの物件情報
大崎ブライトコアビル(品川区北品川)は大崎駅徒歩7分、北品川駅徒歩13分、五反田駅徒歩13分の賃貸オフィスです。
大崎ブライトコアビルのアクセス
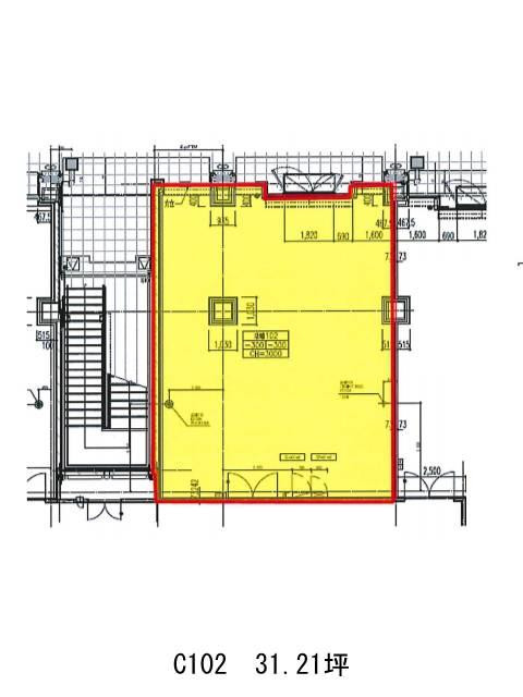
大崎ブライトコアビルのテナント募集中区画
| 階数 | 面積 | 賃料+共益費 | 保証金 | 入居時期 | 検討 | 図面 | 詳細 |
|---|---|---|---|---|---|---|---|
| 1 | 31.21坪 |
応相談応相談
|
応相談
|
即 | |||
| 5 | 448.89坪 |
応相談応相談
|
応相談
|
2026年10月上旬 | |||
| 15 | 80.11坪 |
応相談応相談
|
応相談
|
2026年10月上旬 |


