ツインヒルズ茗荷谷ビル2階の貸事務所・賃貸オフィス情報
ツインヒルズ茗荷谷ビル2階の賃貸オフィス・貸事務所情報
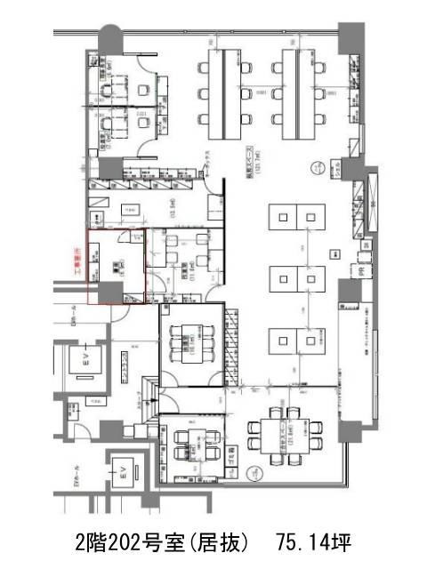
ツインヒルズ茗荷谷ビルのフロア情報
募集階数
2階
面積
75.14坪
賃料+共益費
991,848円
13,200円/坪
保証金
1082万円
入居時期
2026年6月中旬
更新料
新1ケ月
償却費
なし
礼金
なし
ツインヒルズ茗荷谷ビル
- エレベーター
- 個別空調
- 男女別トイレ
- 駐車場
- 新耐震基準
ツインヒルズ茗荷谷ビルのフロア情報
募集階数
2階
面積
75.14坪
賃料+共益費
991,848円
13,200円/坪
保証金
1082万円
入居時期
2026年6月中旬
更新料
新1ケ月
償却費
なし
礼金
なし
ツインヒルズ茗荷谷ビルの物件情報
ツインヒルズ茗荷谷ビル(文京区小日向)は茗荷谷駅徒歩4分の賃貸オフィスです。
ツインヒルズ茗荷谷ビルのアクセス
ツインヒルズ茗荷谷ビルのテナント募集中区画
| 階数 | 面積 | 賃料+共益費 | 保証金 | 入居時期 | 検討 | 図面 | 詳細 |
|---|---|---|---|---|---|---|---|
| 2 | 75.14坪 |
991,848円13,200円/坪
|
1082万円
|
2026年6月中旬 |


